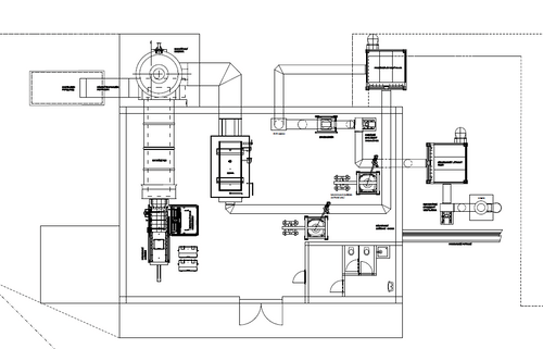
Předmětem studie proveditelnosti bylo posouzení možnosti modernizace spalovny nebezpečného odpadu Brtnice po stránce technologické, technické, stavební a ekonomické s cílem navýšení zpracovatelské kapacity na 2 800 t. V rámci studie byl popsán legislativní rámec s ohledem na současné a budoucí emisní limity a navrženo technologické řešení uvažující plně suché čištění spalin a utilizaci tepla pomocí parního okruhu, doplněné výkresovou dokumentací. Součástí studie byla také ekonomická analýza, která stanovila předpokládané investiční a provozní náklady, a analýza rizik, následně byla také vypracována dokumentace pro EIA.
